Javaslat a Kincsem istálló közösségi célú hasznosítására
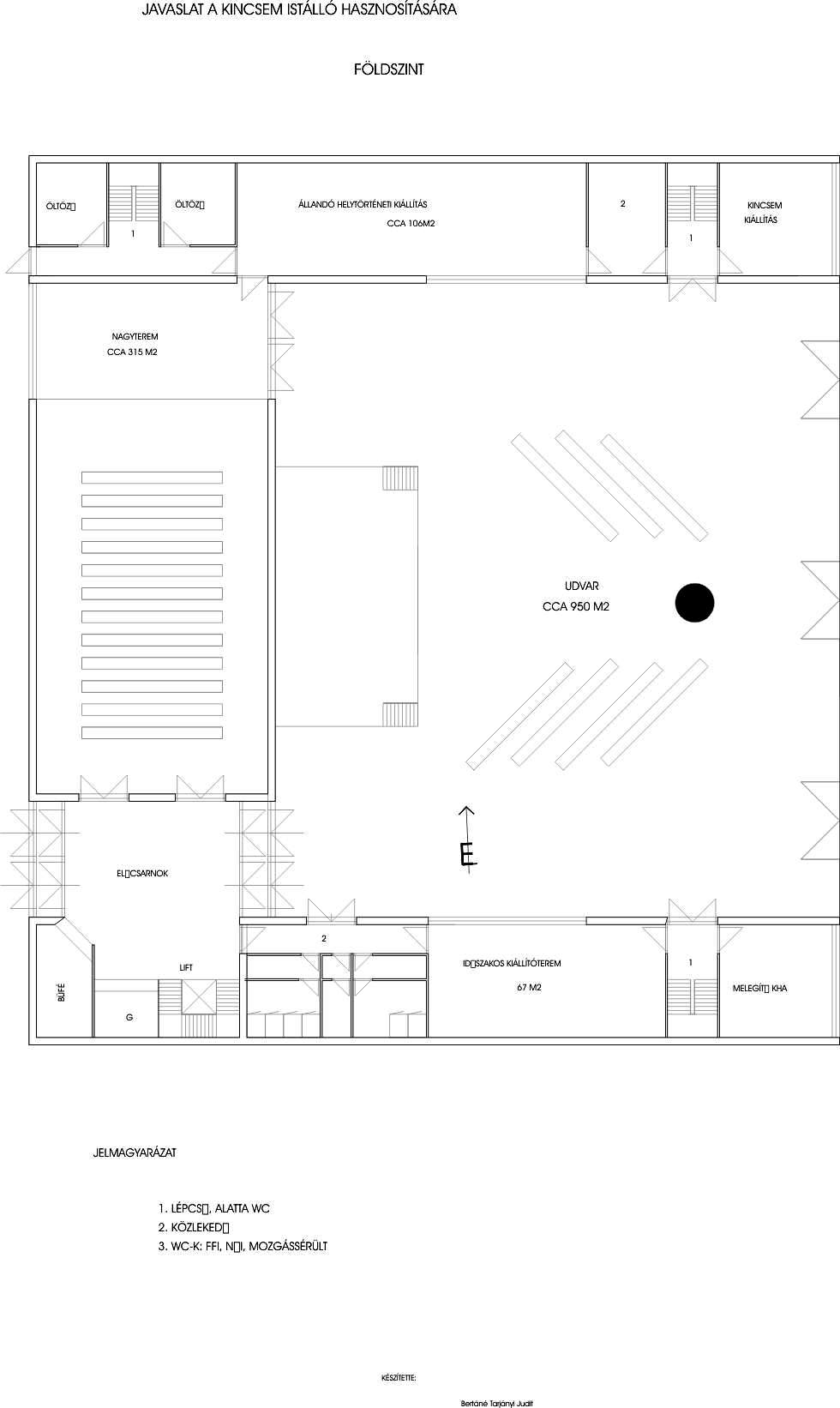
Az alaprajz
Az alaprajz